找回密码
 立即注册

QQ登录

只需一步,快速开始

扫一扫,访问微社区

查看: 9657|回复: 22

CAD动态块门的制作问题

[复制链接]

已领礼包: 26个

财富等级: 恭喜发财

发表于 2013-10-31 15:00:52 | 显示全部楼层 |阅读模式

马上注册,结交更多好友,享用更多功能,让你轻松玩转社区。

您需要 登录 才可以下载或查看,没有账号?立即注册

×
最近在学习cad中动态块的制作,做门的动态块时,拉伸、可见性、缩放动作都没有问题,只是在加入翻转动作后就出错了,未翻转的门宽度拉伸时正常,在水平或是垂直翻转后,拉伸门的宽度就会出错,和CAD中自带的动态门对比也没有找出原因,求教制作时是哪儿的操作有问题呢?
下面是我制作完成的动态块操作图片以及附件,请教论坛里大师哪位能解决一下!!!
1.gif

附件:
请点击此处下载

查看状态:需购买或无权限

您的用户组是:游客

文件名称:门动态块.rar 
下载次数:82  文件大小:20.92 KB 
下载权限: 不限 以上  [免费赚D豆]



论坛插件加载方法
发帖求助前要善用【论坛搜索】功能,那里可能会有你要找的答案;
如果你在论坛求助问题,并且已经从坛友或者管理的回复中解决了问题,请把帖子标题加上【已解决】;
如何回报帮助你解决问题的坛友,一个好办法就是给对方加【D豆】,加分不会扣除自己的积分,做一个热心并受欢迎的人!

已领礼包: 1268个

财富等级: 财源广进

发表于 2013-10-31 19:38:14 来自手机 | 显示全部楼层
翻转时也要把参数选上才可以吧

点评

是啊,翻转要先选择参数,再选对象,对象我框选的所有内容,不知是不是框这步错了!  详情 回复 发表于 2013-10-31 22:00
论坛插件加载方法
发帖求助前要善用【论坛搜索】功能,那里可能会有你要找的答案;
如果你在论坛求助问题,并且已经从坛友或者管理的回复中解决了问题,请把帖子标题加上【已解决】;
如何回报帮助你解决问题的坛友,一个好办法就是给对方加【D豆】,加分不会扣除自己的积分,做一个热心并受欢迎的人!
回复 支持 反对

使用道具 举报

已领礼包: 26个

财富等级: 恭喜发财

 楼主| 发表于 2013-10-31 22:00:06 | 显示全部楼层
st788796 发表于 2013-10-31 19:38
翻转时也要把参数选上才可以吧

是啊,翻转要先选择参数,再选对象,对象我框选的所有内容,不知是不是框这步错了!
论坛插件加载方法
发帖求助前要善用【论坛搜索】功能,那里可能会有你要找的答案;
如果你在论坛求助问题,并且已经从坛友或者管理的回复中解决了问题,请把帖子标题加上【已解决】;
如何回报帮助你解决问题的坛友,一个好办法就是给对方加【D豆】,加分不会扣除自己的积分,做一个热心并受欢迎的人!
回复 支持 反对

使用道具 举报

已领礼包: 3033个

财富等级: 富可敌国

发表于 2013-11-1 07:00:24 | 显示全部楼层
看了下楼主的动态块与cad自带的门比较,

楼主的缺了基准点参数、及移动的参数(取0.50倍)
翻转后应该就不会有愈拉愈开的情况。
论坛插件加载方法
发帖求助前要善用【论坛搜索】功能,那里可能会有你要找的答案;
如果你在论坛求助问题,并且已经从坛友或者管理的回复中解决了问题,请把帖子标题加上【已解决】;
如何回报帮助你解决问题的坛友,一个好办法就是给对方加【D豆】,加分不会扣除自己的积分,做一个热心并受欢迎的人!
回复 支持 反对

使用道具 举报

已领礼包: 26个

财富等级: 恭喜发财

 楼主| 发表于 2013-11-1 14:25:20 | 显示全部楼层
后来加了基准点,移动那个0.5的值也试过了,是为了确保门拉伸后翻转的中线始终在门中央,和门在翻转后出错没有必然联系,仍然无解中!

点评

不能把基点和参数都包括在内吧,猜想未验证  详情 回复 发表于 2013-11-1 16:59
论坛插件加载方法
发帖求助前要善用【论坛搜索】功能,那里可能会有你要找的答案;
如果你在论坛求助问题,并且已经从坛友或者管理的回复中解决了问题,请把帖子标题加上【已解决】;
如何回报帮助你解决问题的坛友,一个好办法就是给对方加【D豆】,加分不会扣除自己的积分,做一个热心并受欢迎的人!
回复 支持 反对

使用道具 举报

已领礼包: 1268个

财富等级: 财源广进

发表于 2013-11-1 16:59:05 来自手机 | 显示全部楼层
shuiyao009 发表于 2013-11-1 14:25
后来加了基准点,移动那个0.5的值也试过了,是为了确保门拉伸后翻转的中线始终在门中央,和门在翻转后出错 ...

不能把基点和参数都包括在内吧,猜想未验证
论坛插件加载方法
发帖求助前要善用【论坛搜索】功能,那里可能会有你要找的答案;
如果你在论坛求助问题,并且已经从坛友或者管理的回复中解决了问题,请把帖子标题加上【已解决】;
如何回报帮助你解决问题的坛友,一个好办法就是给对方加【D豆】,加分不会扣除自己的积分,做一个热心并受欢迎的人!
回复 支持 反对

使用道具 举报

已领礼包: 26个

财富等级: 恭喜发财

 楼主| 发表于 2013-11-1 22:01:12 | 显示全部楼层
以下是更新后的动态块附件,增加了基点,移动参数,对齐点以及可调整的门套厚度,翻转动作多次选不同的对象仍然错误依旧{:soso_e127:}

门动态块20131101.zip

23.74 KB, 下载次数: 9, 下载积分: D豆 -1 , 活跃度 1

论坛插件加载方法
发帖求助前要善用【论坛搜索】功能,那里可能会有你要找的答案;
如果你在论坛求助问题,并且已经从坛友或者管理的回复中解决了问题,请把帖子标题加上【已解决】;
如何回报帮助你解决问题的坛友,一个好办法就是给对方加【D豆】,加分不会扣除自己的积分,做一个热心并受欢迎的人!
回复 支持 反对

使用道具 举报

已领礼包: 3033个

财富等级: 富可敌国

发表于 2013-11-2 00:08:53 | 显示全部楼层
早上的回复是草率了些:L
找到答案了,在建立翻转参数->选择物件时用框选的会少框到一些隐藏的物件,
可以先用『全选』再过滤掉视窗的物件就明白我的意思了。
只要把隐藏的物件里会出错的动作一并选上,就可以了。
附加的檔案是以你的图块为基础简单建立的动态块,参考看看吧!

door.zip

38.74 KB, 下载次数: 41, 下载积分: D豆 -1 , 活跃度 1

点评

我将你的附件下载看了一下,发现下面这个左右翻转的参数所到的物体(左侧面板中显示)共有11个,我全选时只有9个物体,缺少的两个应该是你指的隐藏物体,可是我没有找到哦,还请再指点一下! [attachi  详情 回复 发表于 2013-11-2 10:07
论坛插件加载方法
发帖求助前要善用【论坛搜索】功能,那里可能会有你要找的答案;
如果你在论坛求助问题,并且已经从坛友或者管理的回复中解决了问题,请把帖子标题加上【已解决】;
如何回报帮助你解决问题的坛友,一个好办法就是给对方加【D豆】,加分不会扣除自己的积分,做一个热心并受欢迎的人!
回复 支持 反对

使用道具 举报

发表于 2013-11-2 08:39:31 | 显示全部楼层
关注,正好学习这个
论坛插件加载方法
发帖求助前要善用【论坛搜索】功能,那里可能会有你要找的答案;
如果你在论坛求助问题,并且已经从坛友或者管理的回复中解决了问题,请把帖子标题加上【已解决】;
如何回报帮助你解决问题的坛友,一个好办法就是给对方加【D豆】,加分不会扣除自己的积分,做一个热心并受欢迎的人!
回复 支持 反对

使用道具 举报

已领礼包: 26个

财富等级: 恭喜发财

 楼主| 发表于 2013-11-2 10:07:11 | 显示全部楼层
auva 发表于 2013-11-2 00:08
早上的回复是草率了些
找到答案了,在建立翻转参数->选择物件时用框选的会少框到一些隐藏的物件,
可以 ...

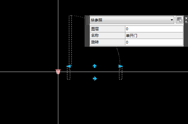
我将你的附件下载看了一下,发现下面这个左右翻转的参数所到的物体(左侧面板中显示)共有11个,我全选时只有9个物体,缺少的两个应该是你指的隐藏物体,可是我没有找到哦{:soso_e127:},还请再指点一下!
QQ截图20131102100107.jpg

点评

我说的全选是Ctrl+A的方式才会选到隐藏物件, 若是用框选的则选不到隐藏物件。  详情 回复 发表于 2013-11-2 11:54
论坛插件加载方法
发帖求助前要善用【论坛搜索】功能,那里可能会有你要找的答案;
如果你在论坛求助问题,并且已经从坛友或者管理的回复中解决了问题,请把帖子标题加上【已解决】;
如何回报帮助你解决问题的坛友,一个好办法就是给对方加【D豆】,加分不会扣除自己的积分,做一个热心并受欢迎的人!
回复 支持 反对

使用道具 举报

已领礼包: 3033个

财富等级: 富可敌国

发表于 2013-11-2 11:54:59 | 显示全部楼层
shuiyao009 发表于 2013-11-2 10:07
我将你的附件下载看了一下,发现下面这个左右翻转的参数所到的物体(左侧面板中显示)共有11个,我全选时 ...

我说的全选是Ctrl+A的方式才会选到隐藏物件,
若是用框选的则选不到隐藏物件。

点评

可是翻转参数选择物体时只能是框选,不可以用快捷键Ctrl+A,不然会退出框选那一步,郁闷啊,可以加QQ说明一下吗1041129949  详情 回复 发表于 2013-11-2 12:10
论坛插件加载方法
发帖求助前要善用【论坛搜索】功能,那里可能会有你要找的答案;
如果你在论坛求助问题,并且已经从坛友或者管理的回复中解决了问题,请把帖子标题加上【已解决】;
如何回报帮助你解决问题的坛友,一个好办法就是给对方加【D豆】,加分不会扣除自己的积分,做一个热心并受欢迎的人!
回复 支持 反对

使用道具 举报

已领礼包: 26个

财富等级: 恭喜发财

 楼主| 发表于 2013-11-2 12:10:41 | 显示全部楼层
auva 发表于 2013-11-2 11:54
我说的全选是Ctrl+A的方式才会选到隐藏物件,
若是用框选的则选不到隐藏物件。

可是翻转参数选择物体时只能是框选,不可以用快捷键Ctrl+A,不然会退出框选那一步,郁闷啊,可以加QQ说明一下吗1041129949
论坛插件加载方法
发帖求助前要善用【论坛搜索】功能,那里可能会有你要找的答案;
如果你在论坛求助问题,并且已经从坛友或者管理的回复中解决了问题,请把帖子标题加上【已解决】;
如何回报帮助你解决问题的坛友,一个好办法就是给对方加【D豆】,加分不会扣除自己的积分,做一个热心并受欢迎的人!
回复 支持 反对

使用道具 举报

已领礼包: 26个

财富等级: 恭喜发财

 楼主| 发表于 2013-11-2 12:44:48 | 显示全部楼层
会使用了,框选时可输入命令ALL就全选了,非常感谢auva的帮助!
论坛插件加载方法
发帖求助前要善用【论坛搜索】功能,那里可能会有你要找的答案;
如果你在论坛求助问题,并且已经从坛友或者管理的回复中解决了问题,请把帖子标题加上【已解决】;
如何回报帮助你解决问题的坛友,一个好办法就是给对方加【D豆】,加分不会扣除自己的积分,做一个热心并受欢迎的人!
回复 支持 反对

使用道具 举报

已领礼包: 3033个

财富等级: 富可敌国

发表于 2013-11-2 13:09:43 | 显示全部楼层
不好意思没有用QQ
第一步:翻转参数选择物体时,先用框选建立。
第二步:按Ctrl+A,全选物件,按shift再框选刚刚选的物件,这时『性质表』会出现剩几个物件。
第三步:下拉去选择『拉伸物件』(因为拉伸物件会造成错误),再于视窗空白处点一下(有时没有点下一步会出错)
第四步:翻转参数『修改选集』,这时按『P』,就是把刚刚选的拉伸物件加入,这样就可以了!

点评

按你说的试了下,已明白怎么做,非常感谢auva的细心帮助!  详情 回复 发表于 2013-11-2 14:42
论坛插件加载方法
发帖求助前要善用【论坛搜索】功能,那里可能会有你要找的答案;
如果你在论坛求助问题,并且已经从坛友或者管理的回复中解决了问题,请把帖子标题加上【已解决】;
如何回报帮助你解决问题的坛友,一个好办法就是给对方加【D豆】,加分不会扣除自己的积分,做一个热心并受欢迎的人!
回复 支持 反对

使用道具 举报

已领礼包: 26个

财富等级: 恭喜发财

 楼主| 发表于 2013-11-2 14:42:27 | 显示全部楼层
auva 发表于 2013-11-2 13:09
不好意思没有用QQ
第一步:翻转参数选择物体时,先用框选建立。
第二步:按Ctrl+A,全选物件,按shift再 ...

按你说的试了下,已明白怎么做,非常感谢auva的细心帮助!{:soso_e183:}
论坛插件加载方法
发帖求助前要善用【论坛搜索】功能,那里可能会有你要找的答案;
如果你在论坛求助问题,并且已经从坛友或者管理的回复中解决了问题,请把帖子标题加上【已解决】;
如何回报帮助你解决问题的坛友,一个好办法就是给对方加【D豆】,加分不会扣除自己的积分,做一个热心并受欢迎的人!
回复 支持 反对

使用道具 举报

您需要登录后才可以回帖 登录 | 立即注册

本版积分规则

QQ|申请友链|Archiver|手机版|小黑屋|辽公网安备|晓东CAD家园 ( 辽ICP备15016793号 )

GMT+8, 2025-11-12 16:29 , Processed in 0.306640 second(s), 66 queries , Gzip On.

Powered by Discuz! X3.5

© 2001-2025 Discuz! Team.

快速回复 返回顶部 返回列表