找回密码
 立即注册

QQ登录

只需一步,快速开始

扫一扫,访问微社区

查看: 835|回复: 1

CAD看图软件中快速测量图纸局部面积的操作步骤分享

[复制链接]
发表于 2019-7-10 16:43:36 | 显示全部楼层 |阅读模式

马上注册,结交更多好友,享用更多功能,让你轻松玩转社区。

您需要 登录 才可以下载或查看,没有账号?立即注册

×
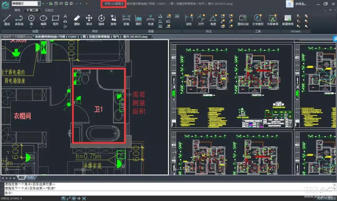
  测量功能是CAD看图软件中不可或缺的功能,测量面积更是会经常被用到,给你一张CAD图纸,你给我测量一下这个户型的总面积,或者你给我测量一下这个户型图里面卫生间的面积。那么,说到测量一整个户型图里面卫生间的面积,就说到了我们今天要给大家介绍的主题:快速测量图纸的局部面积,在这一整张CAD图纸中,我们只想测量一下卫生间的面积,该怎么操作呢,一起来看看吧!
  首先,我们在浩辰CAD看图王电脑版中打开需要测量卫生间面积的CAD图纸,找到需要测量的位置,如图:

   1.jpg

  接下来,我们需要启用面积测量功能来进行测量,面积测量功能位置:浩辰CAD看图王电脑版→扩展工具→测量功能→面积测量,如下图所示:

   2.jpg

  启用面积测量功能之后,在图纸上选取需要测量区域的各个顶点,组成一个封闭的图形,如下图所示:

   3.jpg

  选择完成之后,回车,该区域的面积就显示在界面下方的对话框中了,如下图所示,黄色的虚线框就是我们选择的测量区域:

   4.jpg

  从测量结果中大家可以看出,测量出来该区域的面积是9620,如果我说测量结果是这个卫生间的面积是9620m2,这么大的卫生间你一定没见过吧?尽管这是一栋别墅,但是这卫生间也不应该有这么大对吧?其实您说的没毛病,9620m2肯定是不对的,那么问题出在哪里了呢?
  大家仔细看一下图中的图纸比例1:100 ,对问题就出现在这里了,比例转换我们忘记了,浩辰CAD看图王电脑版默认的单位是mm,我们将其转换成m,那么对于面积来说经过比例转换,96.2m2才是这个卫生间真正的面积。

   5.jpg

  这个时候就有朋友要说了,这个1:100的比例还比较好换算,万一比例是什么1:55,1:21等等不正规的比例,我们换算起来是不是就比较麻烦了呢?
  其实,在浩辰CAD看图王电脑版中有测量比例设置功能,我们可以直接在里面将测量比例进行设置,这样测量的结果就不需要我们再进行比例换算了。
  测量比例设置位置:浩辰CAD看图王电脑版→扩展工具→测量设置,在这里我们将测量的比例进行修改,由于原图纸的比例是1:100,为了测量准确,这里需要反着来,也就是将比例设置成100:1,修改完成后,点击确定,如下图所示:

   6.jpg

  设置好比例之后我们再来测量,测量的结果就是我们想要的标准结果了,如下图所示:

   7.jpg

论坛插件加载方法
发帖求助前要善用【论坛搜索】功能,那里可能会有你要找的答案;
如果你在论坛求助问题,并且已经从坛友或者管理的回复中解决了问题,请把帖子标题加上【已解决】;
如何回报帮助你解决问题的坛友,一个好办法就是给对方加【D豆】,加分不会扣除自己的积分,做一个热心并受欢迎的人!

已领礼包: 6939个

财富等级: 富甲天下

发表于 2019-7-10 18:02:37 | 显示全部楼层
CAD看图软件中快速测量图纸局部面积的操作步骤分享
论坛插件加载方法
发帖求助前要善用【论坛搜索】功能,那里可能会有你要找的答案;
如果你在论坛求助问题,并且已经从坛友或者管理的回复中解决了问题,请把帖子标题加上【已解决】;
如何回报帮助你解决问题的坛友,一个好办法就是给对方加【D豆】,加分不会扣除自己的积分,做一个热心并受欢迎的人!
回复 支持 反对

使用道具 举报

您需要登录后才可以回帖 登录 | 立即注册

本版积分规则

QQ|申请友链|Archiver|手机版|小黑屋|辽公网安备|晓东CAD家园 ( 辽ICP备15016793号 )

GMT+8, 2025-11-12 17:52 , Processed in 0.284642 second(s), 33 queries , Gzip On.

Powered by Discuz! X3.5

© 2001-2025 Discuz! Team.

快速回复 返回顶部 返回列表